ページの本文へ
制御プラットフォーム
Region / Language
Japan(Japanese)
Global Network
お問い合わせ
検索
日立保護継電器
製品
継電器概要
廃形・機種統合継電器
サイトトップ
製品
製品名
比率差動継電器
SY3-G2
SY3-G2
仕様
品名
比率差動継電器
形式
SY3-G2
定格
1A (抑制回路)
0.2A (動作回路)
整定範囲
0.04A
周波数
50Hzまたは60Hz
ICSまたはTAG
TAG:0.2A
消費VA
抑制コイル:1.2VA(50Hz)、1.5VA(60Hz)
動作コイル:3VA(50Hz)、3.6VA(60Hz)
操作電源
DC110V (29W)
質量
17kg
取扱説明書
取扱説明書(PDF形式、KNL2716_5.pdf、948kバイト、A4)
特性管理値表
お問合せください。
内部接続図
取扱説明書の6ページをご参照ください。
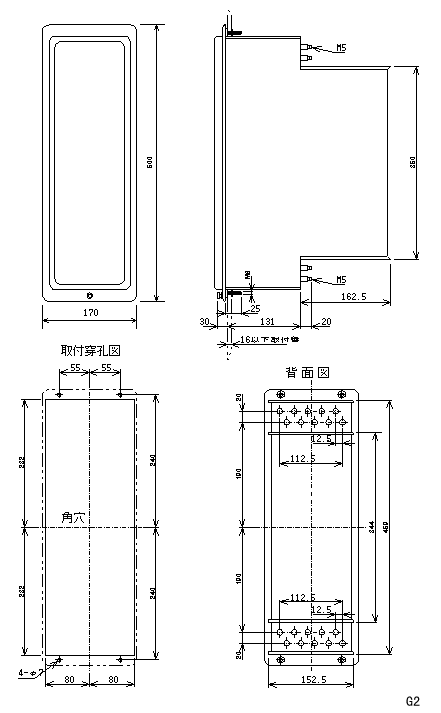
ケース寸法図
PDF形式のファイルをご覧になるには、
Adobe Acrobat Reader
が必要です。
製品名
界磁地絡継電器
過電圧継電器
過電流継電器
過電流継電器(小勢力形)
過励磁保護用電圧継電器
逆相過電流継電器
距離継電器(交流き電用)
限時過電流継電器
自動同期装置
周波数継電器
直流限時継電器
地絡過電圧継電器
地絡過電流継電器(小勢力形)
地絡過電流継電器
地絡継電器(電圧引き外し用)
地絡継電器(電圧、電流引き外し両用)
地絡方向継電器
電圧継電器
電圧平衡継電器
電圧抑制付過電流継電器
電流変化幅継電器
電力継電器
電力方向継電器
同期継電器
反相継電器
比率差動継電器
比率差動電流継電器
不足電圧継電器
リアクタンス継電器
形式
日立のソーシャルメディアについて
サイトマップ
日立グループTOP
サイトの利用条件
個人情報保護に関して
© Hitachi, Ltd.
1994
. All rights reserved.